理想の住まいをデザイン!間取りの基本と、暮らしを豊かにする工夫とは?家族構成別、将来を見据えた間取り設計のポイント
新築住宅の間取り設計、家族構成とライフスタイルに合わせた理想の住まいを実現!1人暮らしから二世帯住宅まで、最適な間取りを提案。将来を見据え、可変性を持たせた設計で、長く快適に暮らせる家を。収納、動線、部屋数など、快適な暮らしのためのポイントを解説。後悔しない間取りづくりの5ステップを公開!専門家への相談も可能です。
快適な暮らしを叶える:間取りの主要要素
間取りのポイントは?収納、動線、あと一つは?
部屋数!柔軟性も大切。
快適な暮らしを実現するためには、間取りの主要要素である収納スペース、動線、部屋数を重視することが重要です。
特に収納は、使い勝手を考慮した工夫が必要です。
公開日:2025/02/20

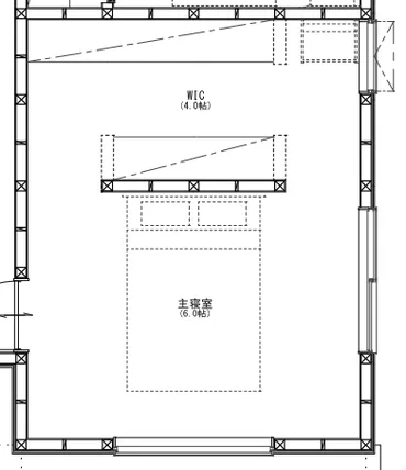
✅ ウォークインクローゼットは、人が入り、着替えもできる収納スペースで、間取りの種類(I型、二列型、L字型、コの字型)によって収納量や使い勝手が異なります。
✅ ウォークインクローゼットを選ぶ際は、使用人数や収納したい物の量に応じて畳数を決めることが重要で、2畳から5畳程度の広さが一般的です。
✅ 2畳のウォークインクローゼットはコンパクトで2人暮らし向け、3畳以上になると収納力が増しますが、部屋のスペースを考慮して間取りを選ぶ必要があります。
さらに読む ⇒香川県・岡山県の注文住宅出典/画像元: https://nissindo.net/column/%E9%96%93%E5%8F%96%E3%82%8A/%E3%82%A6%E3%82%A9%E3%83%BC%E3%82%AF%E3%82%A4%E3%83%B3%E3%82%AF%E3%83%AD%E3%83%BC%E3%82%BC%E3%83%83%E3%83%88%E3%81%A8%E3%81%AF%EF%BC%9F%E9%96%93%E5%8F%96%E3%82%8A%E3%82%84%E7%95%B3%E6%95%B0%E3%81%94/ウォークインクローゼットの解説、大変参考になりました。
収納量や使い勝手を考慮して、間取りを選ぶことが大切ですね。
2畳から5畳まで、様々な広さがあることも知れて良かったです。
間取りを考える際には、収納スペース、動線、部屋数を重視しましょう。
収納は、子どもの成長に合わせて使いやすいように工夫し、ウォークインクローゼットや可動棚などのアイデアを取り入れると良いでしょう。
家事効率を左右する動線は、キッチンから各部屋への移動をスムーズにするなど、生活しやすい間取りを設計することが重要です。
洗濯や子供部屋への導線など、家族の動きを考慮しましょう。
部屋数は、将来のライフスタイルを考慮して計画し、必要に応じて部屋を増減できるような柔軟性も持たせることが望ましいです。
わしはね、ウォークインクローゼットなんてものは、着物をしまうには狭すぎるんじゃよ!箪笥を置けるスペースがないと困るんじゃ!
暮らしを豊かにする工夫:ライフスタイルと空間設計
理想の間取り、どう作る?快適ライフの秘訣は?
ライフスタイルに合わせた間取りを検討しよう!
毎日の生活を快適にするためには、ライフスタイルに合わせた間取りを検討することが大切です。
朝が忙しい家庭、在宅ワーク中心の家庭、来客が多い家庭など、それぞれの生活パターンに合わせた間取りの工夫が必要です。

✅ 家事動線を良くする間取りのアイデアとして、回遊動線の採用、アイランドキッチンの採用、キッチンとダイニングの横並び設計などが挙げられます。
✅ 水回りスペースを集約したり、外出可能なランドリールームを設置することで、洗濯や掃除などの家事効率を向上させることができます。
✅ ファミリークローゼットをランドリールームの近くに配置するなど、収納場所を工夫することで、洗濯後の片付けをスムーズにし、家事の負担を軽減できます。
さらに読む ⇒AVANTIA GROUP出典/画像元: https://avantia-g.co.jp/column/lifestyle/houseworking_easy_idea7/毎日の生活を快適にするための、ライフスタイルに合わせた間取りのアイデア、役立ちそうですね!時短動線やワークスペースなど、具体的な提案が参考になりました。
毎日の生活を快適にするために、ライフスタイルに合わせた間取りを検討しましょう。
朝が忙しい家庭では、キッチン・洗面所・ランドリーを一直線に配置し、時短動線を確保します。
在宅ワーク中心の場合は、半個室型のワークスペースを設け、集中できる環境を作りましょう。
来客が多い場合は、玄関近くに客間や和室を配置することなどを検討しましょう。
日当たりの良い家は、リビングなど家族が過ごす時間が長い部屋を南向きにするか複数の窓を設置するなど、採光を確保しましょう。
子育て家族の場合は、子供を見守りやすい対面キッチンや、ウッドデッキなど、遊びの空間を設けることも有効です。
えー、めっちゃ参考になるやん!私、将来はカフェみたいなキッチンがいいなー!で、友達呼んで、たこ焼きパーティーしたい!
後悔しないための間取り設計:5つのステップ
注文住宅、間取り設計の秘訣は?快適な暮らしの第一歩は?
家族構成、ライフスタイル、将来性を考慮!
注文住宅の間取り設計で失敗しないためには、5つのステップを意識することが重要です。
家族構成、ライフスタイル、将来を見据えた可変性などを考慮し、後悔のない間取りを実現しましょう。
公開日:2025/05/15

✅ 子どもが巣立った後の夫婦二人の生活を見据え、1階だけで生活が完結できる間取りを提案している。
✅ 「Ready GRID Series」は、寝室や水回りなど生活に必要な要素を1階に集約し、和室での就寝を想定したプランを特徴としている。
✅ 子どもの年齢やライフスタイルに合わせて畳スペースの仕様(フラットまたは小上がり)を選択でき、収納力や視線の高さ調整など、子育て中のメリットも考慮されている。
さらに読む ⇒D-GRID HOUSING出典/画像元: https://d-grid.jp/plan/ready_grid/5つのステップ、非常に分かりやすいですね。
間取りは単なる部屋の配置ではなく、暮らし方を形作る設計という言葉が印象的でした。
専門家への相談も検討してみようと思います。
注文住宅の間取り設計で失敗しないためには、以下の5つのステップを意識しましょう。
1. 家族構成別:子育て世帯ではリビング中心の間取り、共働き夫婦・DINKsは家事効率重視、二世帯・三世帯住宅ではプライバシーと交流のバランスを考慮します。
2. ライフスタイル別:朝の忙しさ、在宅ワーク、来客の頻度など、日々の生活に合わせた間取りを考えます。
3. 将来を見据えた可変性:現在の便利さだけでなく、将来の使いやすさも考慮し、個室を趣味部屋へ転用できるよう設計したり、壁の追加・撤去が可能な構造にするなど、可変性を持たせることが重要です。
間取りは単なる部屋の配置ではなく、暮らし方を形作る設計です。
家族の現在と未来に合った間取りを描くことで、快適な暮らしを実現できます。
間取りの検討に悩む場合は、専門家への相談も有効です。
まじか!間取りって、そんなに大事なんや!俺も、もっと真剣に考えよかな!彼女に笑われんようにせんとね!
この記事では、間取り設計の基本から、ライフスタイルに合わせた工夫まで、幅広くご紹介しました。
理想の住まいを実現するために、ぜひこの記事を参考にしてください。
💡 家族構成に合わせた間取り設計の重要性
💡 快適な暮らしを実現するための間取りの主要要素
💡 後悔しないための間取り設計5つのステップ